公開日: 2016.09.09

【物件探し編】リノベするための中古マンション、どう探す?(連載『リノベーションができるまで』1)

【物件探し編】リノベするための中古マンション、どう探す?(連載『リノベーションができるまで』1)

「リノベーションができるまで」と題して、中古マンションの購入からリノベーションの完成までを追う本企画。第一弾は、「物件探し」です。今回の記事では、Renosyのプロジェクトチームで何を基準にどのように中古マンションを探したのかを実例から全てお見せします。

Renosyだからできる物件の探し方

物件探しは、以下の方法で行います。

  1. レインズ
  2. 独自の繋がりによる仕入れ

「レインズ」は、一般の不動産会社が使用している不動産業者専用の物件情報検索ツールです。業者版のSUUMOのようなもので、条件を指定することで公開されている物件を検索することができます。

さらにRenosyでは、レインズに加えて独自のパイプを活用した物件情報の仕入れも行っています。実は、Renosyには中古マンションの不動産売買で急成長してきたノウハウがあるのです。その強みを生かし、独自のパイプから非公開となっている物件の情報まで引っ張ってくることができるのです。

今回もこの2つの方法を駆使して、より条件の良い物件を探しました。

物件探しのポイントと条件

リノベーションでは、内装を間取りから全て変えることができるため、通常のお部屋探しとは少し異なる条件で物件を探すことになります。

Renosyでは今回、以下の条件でリノベーションするマンションを探しました。

  1. 徒歩5分以内の駅に近い物件
  2. リノベーション込みの総額予算は6700万円以内
  3. 築年数に関わらず管理が行き届いている

条件は、この3つだけ。

予算は、ローンが組める金額内で考えます。与信枠の目安は年収の7~8倍になります。年収が400万円の場合は、2800万円~3200万円がローンを組める目安となります。

リノベーションでは、内装を丸ごと新しくすることができるため、お部屋の設備や間取りを気にする必要はほとんどありません。築年数が経っていたり、設備が古くなっていたり、内装が劣化していたりしたほうが、かえって安く物件を購入することができて好都合。このような物件であれば、まさにリノベーションにうってつけです。

Renosyが選んだ物件はこれ!

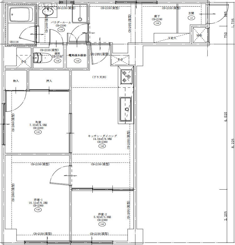
今回は、「グランドメゾン恵比寿東」の1部屋をリノベーションすることにしました。詳細な物件情報は次の通りです。

  • 間取り:3DK
  • 専有面積:59.82m2
  • 構造:鉄骨鉄筋造(SRC)11階建て
  • 土地権利:所有権
  • 建築年月:1981年10月
  • 総戸数:46戸
  • 最寄駅:恵比寿駅まで徒歩3分
  • 管理費:月額1万6750円
  • 修繕積立金:月額8320円
  • 管理形態:全部委託(日勤)
  • 販売価格:5980万円
  • 購入価格:5200万円

この物件は、リフォーム前提の販売価格となっていましたが、今回はリノベーションをするのでリフォームは不要です。交渉して販売価格5980万円からリフォーム価格を割り引き、購入価格は5200万円となりました。

リノベーションにかかる費用は、フルリノベーションをする場合800~1500万円程度と見積もっておきます。今回の場合、物件購入価格と合わせると総額では6000万円~6700万円と見積もることができます。

以上の物件情報から、1.駅から徒歩5分以内、2.予算6700万円以内 の条件はクリアすることができました。

管理が行き届いているかどうかは、「重要事項に係る調査報告書」と修繕積立金管理費、実際のマンションの外観や共有部分を確認します。

重要事項に係る調査報告書は、積立金の残高やマンションの修繕履歴を確認することができるものです。該当するマンションがこれまでに適切な修繕がなされてきているか、将来大きな出費が発生する可能性がないかなどを確認します。

修繕積立金管理費については、きちんと徴収されていることが物件情報から分かります。実際のマンションの外観や共有部分については、足を運んで視察しました。

画像の通り、築35年の物件にしては非常に綺麗に管理されていることが分かります。実際に足を運んで、エントランスからエレベーター、お部屋の玄関までを確認しました。外観や共用部分も管理・整備されており、3.管理が行き届いているか、という条件もクリアできました。

今回は、リノベーションをするということで内装には特にこだわらずに探しましたが、リノベーション後と比較するために実際のお部屋の内装もお見せ致します。

ダイニングキッチン
和室
バスルーム

内装も比較的綺麗に見えますが、ところどころの設備や壁、戸、床に経年による劣化が感じられます。リノベーションにより間取りまで丸ごと設計し直すことで、リフォームだけでは叶えられない理想的な住まいに変えていきます。

まとめ

リノベーションに向けた物件選びのポイントは、以下の3つ。

  1. 予算の目安となる与信枠は年収の7~8倍の金額、フルリノベーションの費用は800万~1500万円と見積もる
  2. 立地などリノベーションで変えることができない箇所に条件をつけて探す
  3. マンションの管理規約や重要事項に係る調査報告書を確認し、実際に視察する

今回は、【物件探し編】ということで物件選びと物件を決めるところまでお伝えしました。

次は、リノベーションにかかる費用の概算と全体的なローンの審査・契約を同時並行的に進めていくことになります。お楽しみに!

連載『リノベーションができるまで』

  1. 【特別連載予告】「リノベーションができるまで」をお見せします!
  2. 【物件探し編】リノベするための中古マンション、どう探す?
  3. 【住宅ローン編】リノベ費用込みで住宅ローンを組む方法
  4. 【リノベプラン決定編】こだわりを伝え、理想のリノベを実現しよう
  5. 【完成編】リノベで「Renosy Studio」ができるまで

※本記事の情報は、信頼できると判断した情報・データに基づいておりますが、正確性、完全性、最新性を保証するものではありません。法改正等により記事執筆時点とは異なる状況になっている場合があります。また本記事では、記事のテーマに関する一般的な内容を記載しており、より個別的な、不動産投資・ローン・税制等の制度が読者に適用されるかについては、読者において各記事の分野の専門家にお問い合わせください。(株)GA technologiesにおいては、何ら責任を負うものではありません。

関連キーワード

この記事を書いた人

RENOSYマガジン編集部

「不動産やお金の疑問をわかりやすく解決するメディア」を掲げ、本当にためになる情報の提供を目指すRENOSYマガジン編集部。税理士やファイナンシャルプランナーの人たちと共に、中立・客観的な視点で「不動産とお金」を解説、読んでいる人が自分の意思で選択できるように日々活動している。

  1. TOP
  2. RENOSY マガジン
  3. 特集
  4. 【物件探し編】リノベするための中古マンション、どう探す?(連載『リノベーションができるまで』1)
LINE Instagram Youtube Facebook X