公開日: 2016.10.12

【リノベプラン決定編】こだわりを伝え、理想のリノベを実現しよう 連載『リノベーションができるまで』3

【リノベプラン決定編】こだわりを伝え、理想のリノベを実現しよう 連載『リノベーションができるまで』3

間取りからインテリアまで自分の理想の住まいを実現することができるリノベーション。それだけに理想のリノベーションを叶えるためには、計画がとても大切!Renosyがお客様のご要望を聞いてそれを目に見える形にしていくのですが、当然一回で決まるものではありません。物件購入後からリノベーションのプランが決まるまでを見ていきます。

物件が決まったら……

自分の購入するマンションが決まったら、住宅ローンの審査を通すためにリノベーション費用の概算を出していきます。ここからは、住宅ローンの審査と同時並行的にリノベーションプランを詰めていくことになります。

住宅ローン編】リノベ費用込みで住宅ローンを組む方法

リノベーション費用の概算は、物件が決まり初期のイメージプランの打ち合わせを行った後に、多めに見積もって算出します。これは、ローン審査通過後に融資枠を広げることが困難なためです。かといって、現実に即していない概算というわけではなく、あくまでも実際に考えられる範囲内でリノベーションの費用を概算します。

その時々によっても異なりますが、理想的な流れとしては以下のような流れでリノベーションのプランを決めていきます。

  1. 物件購入決定:現地調査も行います
  2. 打ち合わせ1回目:こだわりや理想から、間取りと仕様の方向性を確認(工事費用の概算も算出)
  3. 打ち合わせ2回目:要望と予算をふまえた具体的な提案と検討を重ねる
  4. 打ち合わせ3回目:前回の打ち合わせ内容を反映した提案をもとに、さらに細部+α仕様まで決定していく(予算をほぼ決定)
  5. 打ち合わせ4回目:プランを決定し、問題がなければ工事の準備を進めていく

これはあくまでも理想の流れであり、案件によって大きく異なる部分です。自分で納得ができるか否かになりますので、積極的に要望を伝えていきましょう。

イメージプランの打ち合わせ

イメージプランの打ち合わせでは、コーディネーターやデザイナーと打ち合わせをしていきます。

Renosyでは、イメージモデルプランとして「アジアン」「クラシック」「ジャパニーズ」「ナチュラル」を用意しています。これらはあくまでイメージであり、リノベーションに決まった型はありません。はじめは、物件の写真や既存図を見ながらお部屋の大まかなイメージから決めていき、徐々にあなただけのデザインにしていきます。

既存図は、リノベーション前のお部屋の詳細な間取りを表した図です。物件の広さや形を見てそれに合わせた提案を受けながら、自分のこだわりを伝えていきましょう。

こだわりを伝えるポイントとして、「こういう風にしたい!」という意見だけでなく、「自転車を室内に置きたいので、土間のスペースを広くしたい」といったように目的も一緒に伝えるようにしましょう。目的を伝えることで、コーディネーターやデザイナーから新たな提案を受けられることがよくあります。イメージを決定しつつ、選択肢を広げる作業もしていくのがベターです。

今回の物件の場合

この既存図は、今回リノベーションするマンションのお部屋を表した実際のものです(参考:『【物件探し編】リノベするための中古マンション、どう探す?)。今回はRenosyが施主(リノベーションの依頼主)なので、外部のデザイナーさんにも協力を得ながら協議を進めていきました。

今回の物件の特徴としては、次のようなものが挙げられます。

  • 玄関のスペースが非常に広い
  • 3DKという比較的古い物件に多い間取り
  • 躯体的に水回りの制約がある

これらの特徴から今回のリノベーションでは以下が打ち合わせ時のポイントとなっていました。

  • 玄関の広さを活かして、収納スペースを確保したい
  • 空間を広く演出できる間取りへの変更
  • 中古物件特有のクラシック感を活かす
  • 天然素材を使用したナチュラルテイストを目指す
  • アイランドキッチンにする

デザイナーさんと意見を交わし、コーディネーターと共にインテリアレベルの細かい仕様まで決めていきました。

リノベーションで変更できない部分もある

リノベーションでは、一部屋を丸ごと作り変えることができますが、変更できない部分もあります。室内に当たる専有部分、マンションのエントランスやエレベーター、外廊下、ベランダなどの共用部分がその代表例。ドアや窓のサッシも基本的には既存のものを使用します。

それ以外にも、躯体の撤去や水回りの大きな移動なども建物によっては難しいこともあります。特に躯体部分に関することは、基礎部分や柱、壁のみを残すスケルトンにして実際に現地調査をすることで変更できないことが明らかになる場合もあります。

今回の場合、水回りで制約のある物件だったため、お風呂やトイレの位置はそのままで、無理のない範囲でキッチンをお部屋の中心に移動するプランにしていきました。

打ち合わせ期間の長さに注意が必要な時も

冒頭でも書きましたが、リノベーションの打ち合わせは要望と提案を繰り返す形で2~4回で決めていけるのが理想です。物件探しの段階からリノベーションの理想を伝えておくと、プランの打ち合わせもスムーズに行うことができます。

自分のこだわりと理想を実現させるためには、打ち合わせを長く取りたいところですが、打ち合わせが長引くことで発生する問題もあります。それは、完了予定日が遅れることによる「二重払い期間」の長期化です。

ほとんどの場合、打ち合わせ後に金銭消費貸借契約(決済契約)を結び、物件の引き渡しを行った後で施工を開始するので心配することはありませんが、金銭消費貸借契約を結んだ後に打ち合わせが発生するなどしてしまった場合には、二重払い期間が長引いてしまうことがあるのです。

二重払いは住み替えのタイミングがずれることで現在住んでいる住まいの家賃とローンの返済が同時に発生することを言います。中古マンションのリノベーションの場合、施工期間は決まっているため金銭消費貸借契約を行った後はすぐに施工を開始し、滞りなく完了させるのがお得です。

上図例で言うと、リノベーションの打ち合わせが金賞消費貸借契約から5日間延びてしまった場合、施工期間はそのままスライドし、完了日も予定より5日間延びることになってしまいます。

二重払いの期間はなるべく最小限に抑えたい部分です。施工期間のみで収まるように事前に漏れのないように打合せをしておきましょう。

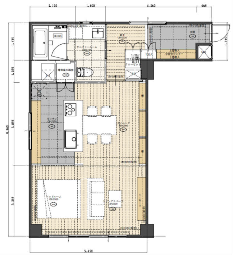
Renosyのイメージプラン

上図は今回の物件で使用しているリノベーション完成後をイメージした初期の平面図です。今回出来上がったイメージプランの主な特徴は以下のとおり。

  • 玄関の土間スペースを広げ、収納スペースも広く確保
  • 既存の間仕切り壁を取り払い、空間に余裕と広がりを持たせるワンルームタイプに
  • キッチンの床を他より8cm下げてタイルにし、広々としたアイランドキッチンを採用
  • ガラス間仕切りを採用し、ワンルームタイプでありつつもパブリックスペースとプライベートスペースを区別した秩序ある空間に
  • ダイニングスペースに備え付けの棚を設置し、お部屋の利便性を向上
  • お部屋のフローリングには無垢材を採用し、質感が高く温もりのあるナチュラル仕様に
  • 天井はスケルトンを生かした天高にし、あえてコンクリートをむき出しにすることでヴィンテージの風合いを演出
  • プロジェクターを天井に設置し、リビングで上映できるように

上記が今回のリノベーションによる主な変更予定箇所になります。全体的なテーマとしては「ナチュラル&ヴィンテージ」といった感じです。

この後素材やサイズなど細かいところまで詳細を詰めて、施工業者と工事の準備をしていくことになります。

このイメージプランで果たしてどのようなお部屋になるのか、お楽しみに!!

連載『リノベーションができるまで』

  1. 【特別連載予告】「リノベーションができるまで」をお見せします!
  2. 【物件探し編】リノベするための中古マンション、どう探す?
  3. 【住宅ローン編】リノベ費用込みで住宅ローンを組む方法
  4. 【リノベプラン決定編】こだわりを伝え、理想のリノベを実現しよう
  5. 【完成編】リノベで「Renosy Studio」ができるまで

※本記事の情報は、信頼できると判断した情報・データに基づいておりますが、正確性、完全性、最新性を保証するものではありません。法改正等により記事執筆時点とは異なる状況になっている場合があります。また本記事では、記事のテーマに関する一般的な内容を記載しており、より個別的な、不動産投資・ローン・税制等の制度が読者に適用されるかについては、読者において各記事の分野の専門家にお問い合わせください。(株)GA technologiesにおいては、何ら責任を負うものではありません。

この記事を書いた人

RENOSYマガジン編集部

「不動産やお金の疑問をわかりやすく解決するメディア」を掲げ、本当にためになる情報の提供を目指すRENOSYマガジン編集部。税理士やファイナンシャルプランナーの人たちと共に、中立・客観的な視点で「不動産とお金」を解説、読んでいる人が自分の意思で選択できるように日々活動している。

  1. TOP
  2. RENOSY マガジン
  3. 特集
  4. 【リノベプラン決定編】こだわりを伝え、理想のリノベを実現しよう 連載『リノベーションができるまで』3
LINE Instagram Youtube Facebook X