公開日: 2021.04.22

仲良しファミリーの笑顔がいつまでもつづく。幸せファミリーリノベ。ー RENOSY(リノシー)リノベ事例

仲良しファミリーの笑顔がいつまでもつづく。幸せファミリーリノベ。ー RENOSY(リノシー)リノベ事例

RENOSYでは、中古マンションの家の中をいったん全部なくして、ゼロからお客様と一緒に、おうちづくりを行っています。フルリノベーションはもちろん一部のお部屋だけをリノベした例もあります。RENOSYでリノベーションした事例をご紹介します。

家族みんながハッピーな家づくり

ご夫婦とお子様2人との4人家族。趣味は家族揃ってのキャンプ。外出の多い休日や、慌ただしい平日を過ごす家族。それぞれが自分の時間を過ごすことができる家づくりと、これから難しい年頃を迎えるお子様たちの成長が、今回の家づくりにおいて特に考えたポイントでした。

 

家の中心に大きなウォークインクローゼットを置き、リビングを通らないと子供たちの部屋には行けない設計に。そのため忙しい日でも、家族が家の中心に集まります。リビングに家族が集まると自然と会話が始まり、そんな些細な会話からは楽しいアイデアが生まれ、家族で出かける新しい週末の予定ができるのです。

ウォークインクローゼット

リビング

子ども部屋

キッチン

和室

物件情報

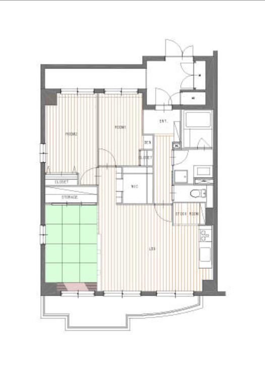
間取り 3LDK→2LDK
構造 SRC
完工時築年数 26年
エリア 東京都
世帯構成 家族(ご夫婦+お子様2人)
広さ 83.48㎡
物件価格
リノベーション費用 1,200万円
月支払い 13万円
以前の住まい 社宅 70㎡
以前の家賃

間取り

BEFORE

BEFORE AFTER

AFTER

撮影:今井 淳史(日本建築写真家協会会員)

※本記事の情報は、信頼できると判断した情報・データに基づいておりますが、正確性、完全性、最新性を保証するものではありません。法改正等により記事執筆時点とは異なる状況になっている場合があります。また本記事では、記事のテーマに関する一般的な内容を記載しており、より個別的な、不動産投資・ローン・税制等の制度が読者に適用されるかについては、読者において各記事の分野の専門家にお問い合わせください。(株)GA technologiesにおいては、何ら責任を負うものではありません。

この記事を書いた人

RENOSYマガジン編集部

「不動産やお金の疑問をわかりやすく解決するメディア」を掲げ、本当にためになる情報の提供を目指すRENOSYマガジン編集部。税理士やファイナンシャルプランナーの人たちと共に、中立・客観的な視点で「不動産とお金」を解説、読んでいる人が自分の意思で選択できるように日々活動している。

  1. TOP
  2. RENOSY マガジン
  3. 特集
  4. 仲良しファミリーの笑顔がいつまでもつづく。幸せファミリーリノベ。ー RENOSY(リノシー)リノベ事例
LINE Instagram Youtube Facebook X