公開日: 2021.04.16

20代で叶えたわたしの小さなアトリエ空間ー RENOSY(リノシー)リノベ事例

20代で叶えたわたしの小さなアトリエ空間ー RENOSY(リノシー)リノベ事例

RENOSYでは、中古マンションの家の中をいったん全部なくして、ゼロからお客様と一緒に、おうちづくりを行っています。フルリノベーションはもちろん一部のお部屋だけをリノベした例もあります。RENOSYでリノベーションした事例をご紹介します。

賃貸卒業。マイホームはアトリエへ

アパレルメーカーでファッションデザイナー兼プレスとしてのお仕事をしている独身女性。家でもお仕事のつづきをすることが多く、元々の小さな賃貸のお部屋ではどうしても雑然となってしまい、お仕事に集中できなくストレスを感じてしまいます。

希望はオン・オフの気分転換もできて、発想と集中ができるお仕事の場としても機能する住み家を考えていました。(イメージ設定)

サンシャイン60すぐ近くの東池袋に立地している今回のお部屋。職場にも近くショッピングや食事にもとても便利なロケーションです。

開放的な広さを感じさせる設計でストレスフリーを演出するとともに、昭和63年着工と古めの物件ということもあり、人気エリアにも関わらず総予算を抑えることもできました。アイデアに詰まった時などには、一歩外を出て雑多な雰囲気の街中をぶらり散歩することで気分転換ができます。 

リビング・ダイニング

画像

画像

キッチン

サニタリー

物件情報

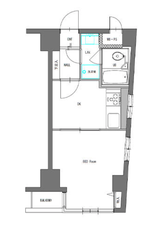
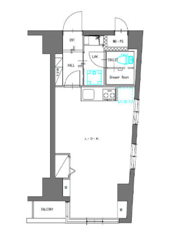
間取り 1DK → 1R
構造 SRC
完工時築年数 29年
エリア 東京都豊島区
世帯構成 女性1人
広さ 28.9m2
物件価格 2,330万円
リノベーション費用 530万円
月支払い 95,692円(金利0.825% 35年)
以前の住まい
以前の家賃

間取り

BEFORE

BEFORE AFTER

AFTER

撮影:今井 淳史(日本建築写真家協会会員)

※本記事の情報は、信頼できると判断した情報・データに基づいておりますが、正確性、完全性、最新性を保証するものではありません。法改正等により記事執筆時点とは異なる状況になっている場合があります。また本記事では、記事のテーマに関する一般的な内容を記載しており、より個別的な、不動産投資・ローン・税制等の制度が読者に適用されるかについては、読者において各記事の分野の専門家にお問い合わせください。(株)GA technologiesにおいては、何ら責任を負うものではありません。

この記事を書いた人

RENOSYマガジン編集部

「不動産やお金の疑問をわかりやすく解決するメディア」を掲げ、本当にためになる情報の提供を目指すRENOSYマガジン編集部。税理士やファイナンシャルプランナーの人たちと共に、中立・客観的な視点で「不動産とお金」を解説、読んでいる人が自分の意思で選択できるように日々活動している。

  1. TOP
  2. RENOSY マガジン
  3. 特集
  4. 20代で叶えたわたしの小さなアトリエ空間ー RENOSY(リノシー)リノベ事例
LINE Instagram Youtube Facebook X