公開日: 2021.04.13

落ち着いた上質空間と収納性。 双方を併せ持つスタイリッシュモダニズムー RENOSY(リノシー)リノベ事例

落ち着いた上質空間と収納性。 双方を併せ持つスタイリッシュモダニズムー RENOSY(リノシー)リノベ事例

RENOSYでは、中古マンションの家の中をいったん全部なくして、ゼロからお客様と一緒に、おうちづくりを行っています。フルリノベーションはもちろん一部のお部屋だけをリノベした例もあります。RENOSYでリノベーションした事例をご紹介します。

太陽の光がたっぷり差し込む空間

ファッション関係のお仕事をしているため、デザインには強いこだわりがあるという施主さま。“上質感と収納性を兼ね備えたラグジュアリーな空間”と、将来住み替えを考えるときにもスムーズに売却ができる、“高い資産性を維持できる物件”にこだわり、一切妥協しない住まいづくりを目指しました。

お仕事柄、衣装類の荷物が多く収納にお悩みだった施主さま。 既存の物件では満足のゆく収納が絶対に得られないと、最初から新築物件の選択肢は無かったそう。

また、資産性を考慮する上で物件の立地と“陽あたり”を重要視。勤務中のランチタイムを利用して日中に内見したそうです。

そしてお選びいただいた物件は、築年数は経っているものの、共有部分、外観共に管理が行き届き綺麗な状態で、なにしろ“陽あたり”がとてもよかったことが決め手に。

高い収納性と素材から細部までにこだわった思い通りのデザインで、理想的な住まいを“中古マンション × リノベ”叶えることができました。

リビング・ダイニング

キッチン

サニタリー

ベランダ

収納

物件情報

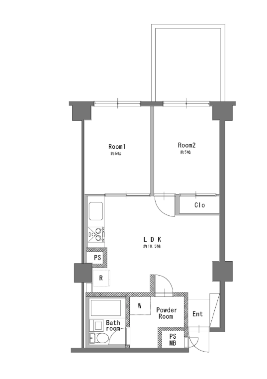
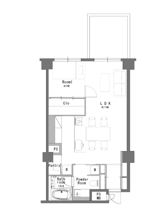
間取り 2LDK→1LDK
構造 鉄骨鉄筋コンクリート
完工時築年数 44年
エリア 東京都港区赤坂
世帯構成 単身者
広さ 51.7m2
物件価格
リノベーション費用
月支払い
以前の住まい ご実家
以前の家賃

間取り

BEFORE

BEFORE AFTER

AFTER

撮影:今井 淳史(日本建築写真家協会会員)

【関連リンク】
わたしのリノベーションストーリー:「1cm」の単位までこだわり計算して作った、収納上手なファッショニスタさんの部屋

※本記事の情報は、信頼できると判断した情報・データに基づいておりますが、正確性、完全性、最新性を保証するものではありません。法改正等により記事執筆時点とは異なる状況になっている場合があります。また本記事では、記事のテーマに関する一般的な内容を記載しており、より個別的な、不動産投資・ローン・税制等の制度が読者に適用されるかについては、読者において各記事の分野の専門家にお問い合わせください。(株)GA technologiesにおいては、何ら責任を負うものではありません。

この記事を書いた人

RENOSYマガジン編集部

「不動産やお金の疑問をわかりやすく解決するメディア」を掲げ、本当にためになる情報の提供を目指すRENOSYマガジン編集部。税理士やファイナンシャルプランナーの人たちと共に、中立・客観的な視点で「不動産とお金」を解説、読んでいる人が自分の意思で選択できるように日々活動している。

  1. TOP
  2. RENOSY マガジン
  3. 特集
  4. 落ち着いた上質空間と収納性。 双方を併せ持つスタイリッシュモダニズムー RENOSY(リノシー)リノベ事例
LINE Instagram Youtube Facebook X