公開日: 2021.04.20

素材も空間も贅沢に使ったオトナ男子のナチュラルヴィンテージー RENOSY(リノシー)リノベ事例

素材も空間も贅沢に使ったオトナ男子のナチュラルヴィンテージー RENOSY(リノシー)リノベ事例

RENOSYでは、中古マンションの家の中をいったん全部なくして、ゼロからお客様と一緒に、おうちづくりを行っています。フルリノベーションはもちろん一部のお部屋だけをリノベした例もあります。RENOSYでリノベーションした事例をご紹介します。

おうち時間を考えなおす

ひとり暮らしの30代独身男性。元のお住まいは賃料8万円の20㎡のワンルーム。ただ帰って寝るためだけの住環境を変え、もっとお友達を呼んだり家で過ごす時間を大切にしていきたいと考えていました。

「住環境は変えたいが、生活環境は変えたくない」というご希望に沿い、元のお住まいの近くの物件をご提案。

高台に位置し、遠くに東京タワーとスカイツリー、そして富士山までも望むことができる、広さ47㎡のお部屋です。

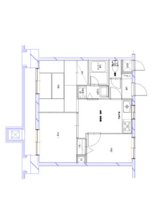
3DKだった間取りは贅沢に1LDKリノベーション。将来のライフスタイルの変化にも対応できるよう、2LDKにも簡単に間取りが変更できるように設計しています。

リビング・ダイニング

キッチン

寝室

バスルーム

玄関

物件情報

間取り 3DK → 1LDK
構造 RC
完工時築年数 32年
エリア 神奈川県横浜市
世帯構成 男性1人
広さ 47.08m2
物件価格 1,450万円
リノベーション費用 1,000万円
月支払い 8万円(管理費、修繕費込み)
以前の住まい 賃貸 20㎡新築ワンルーム
以前の家賃 7.8万円

間取り

BEFORE

BEFORE AFTER

AFTER

撮影:今井 淳史(日本建築写真家協会会員)

※本記事の情報は、信頼できると判断した情報・データに基づいておりますが、正確性、完全性、最新性を保証するものではありません。法改正等により記事執筆時点とは異なる状況になっている場合があります。また本記事では、記事のテーマに関する一般的な内容を記載しており、より個別的な、不動産投資・ローン・税制等の制度が読者に適用されるかについては、読者において各記事の分野の専門家にお問い合わせください。(株)GA technologiesにおいては、何ら責任を負うものではありません。

この記事を書いた人

RENOSYマガジン編集部

「不動産やお金の疑問をわかりやすく解決するメディア」を掲げ、本当にためになる情報の提供を目指すRENOSYマガジン編集部。税理士やファイナンシャルプランナーの人たちと共に、中立・客観的な視点で「不動産とお金」を解説、読んでいる人が自分の意思で選択できるように日々活動している。

  1. TOP
  2. RENOSY マガジン
  3. 特集
  4. 素材も空間も贅沢に使ったオトナ男子のナチュラルヴィンテージー RENOSY(リノシー)リノベ事例
LINE Instagram Youtube Facebook X