公開日: 2021.04.05

季節のうつろいを感じられる 共働き子育てファミリーのためのリノベスタイルー RENOSY(リノシー)リノベ事例

季節のうつろいを感じられる 共働き子育てファミリーのためのリノベスタイルー RENOSY(リノシー)リノベ事例

RENOSYでは、中古マンションの家の中をいったん全部なくして、ゼロからお客様と一緒に、おうちづくりを行っています。フルリノベーションはもちろん一部のお部屋だけをリノベした例もあります。RENOSYでリノベーションした事例をご紹介します。

季節とともに、お子さんの成長を感じられるおうちへ

保育園へ通う娘さんをお持ちの共働きご夫婦。元のお住まいは日差しがあまり入らない小さめの2DKの賃貸マンション。 導線が悪く、収納も少なくモノがたくさん。

家事子育てと共働きを両立できる快適な住まいが欲しい。そして、おふたりが出会った頃に住んでいた、陽の光が降り注ぎ、さわやかな風が吹き抜け、草木の匂いが漂うあの、うつろう季節を感じることができた場所。そんな自然を感じられる環境で子供の成長を見守りたいと考えていました。
 
お住まいの購入を検討しはじめたものの理想的な住まいになかなか出会えず、住まい選びには妥協が必要なのではないかと考えはじめていた頃、“中古マンション × リノベーション”という住まいづくりのカタチを知ったそうです。

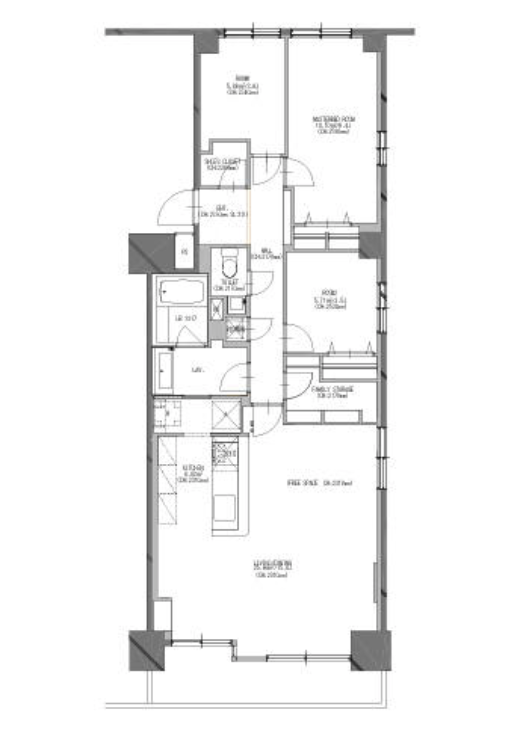
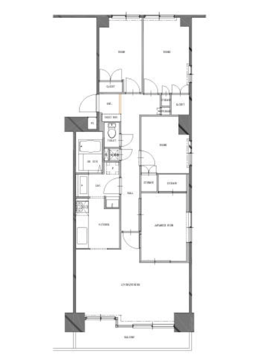
今回ご購入いただいた物件は約90㎡4LDKのお部屋で、以前のお住まいの倍近い広さ。元は和室だった部分を取り払い、3LDKリノベーションしました。

リビング・ダイニング

キッチン

子ども部屋

廊下

サニタリー

物件情報

間取り 4LDK → 3LDK
構造 RC
完工時築年数 29年
エリア 神奈川県横浜市
世帯構成 ご夫婦2人+お子さま1人
広さ 89.5m2
物件価格 2,100万円
リノベーション費用 1,400万円
月支払い 12.3万円
以前の住まい 賃貸 50m2
以前の家賃 9.3万円

間取り

BEFORE

BEFORE AFTER

AFTER

撮影:今井 淳史(日本建築写真家協会会員)

※本記事の情報は、信頼できると判断した情報・データに基づいておりますが、正確性、完全性、最新性を保証するものではありません。法改正等により記事執筆時点とは異なる状況になっている場合があります。また本記事では、記事のテーマに関する一般的な内容を記載しており、より個別的な、不動産投資・ローン・税制等の制度が読者に適用されるかについては、読者において各記事の分野の専門家にお問い合わせください。(株)GA technologiesにおいては、何ら責任を負うものではありません。

この記事を書いた人

RENOSYマガジン編集部

「不動産やお金の疑問をわかりやすく解決するメディア」を掲げ、本当にためになる情報の提供を目指すRENOSYマガジン編集部。税理士やファイナンシャルプランナーの人たちと共に、中立・客観的な視点で「不動産とお金」を解説、読んでいる人が自分の意思で選択できるように日々活動している。

  1. TOP
  2. RENOSY マガジン
  3. 特集
  4. 季節のうつろいを感じられる 共働き子育てファミリーのためのリノベスタイルー RENOSY(リノシー)リノベ事例
LINE Instagram Youtube Facebook X