公開日: 2021.04.04

美観と快適性と機能性。すべてを叶えた "西海岸モダンスタイル"ー RENOSY(リノシー)リノベ事例

美観と快適性と機能性。すべてを叶えた "西海岸モダンスタイル"ー RENOSY(リノシー)リノベ事例

RENOSYでは、中古マンションの家の中をいったん全部なくして、ゼロからお客様と一緒に、おうちづくりを行っています。フルリノベーションはもちろん一部のお部屋だけをリノベした例もあります。RENOSYでリノベーションした事例をご紹介します。

とことんこだわり、自分たちらしいお家に

サーフィンが趣味のご主人さまは、海にも比較的近く都内の職場にも行きやすく、家族が住みやすい街が理想ということで、奥様の地元でもある千葉県の東京近郊エリアをご希望。一方奥様は、新築物件よりも自分らしいライフスタイルを叶えることができるリノベーションに魅力を感じていました。

中古マンションのリノベーションとはいえ「古めかしい物件には住みたくない」という奥様のご希望で、今回は外観もエントランスもとてもキレイな、まだ築8年の物件をお選びいただきました。

お部屋も簡単なリフォームで十分快適に住める状態でしたが、理想の暮らしを叶える為にご夫婦はフルリノベーションを選択。

ご夫婦には間もなく新しい命が誕生するご予定もあり、子育てに快適な住まいづくりが大前提に。将来的には子供が2人になることを想定し、全体的に使いやすくゾーニング性を持たせたデザインをご提案いたしました。

リビング・ダイニング

キッチン

収納

多目的スペース

廊下

物件情報

間取り 3LDK
構造 RC
完工時築年数 8年
エリア 千葉県船橋市
世帯構成 ご夫婦2人
広さ 70.79m2
物件価格 2,700万円
リノベーション費用 1,300万円
月支払い 10.7万円
以前の住まい 賃貸45m2
以前の家賃 11万円

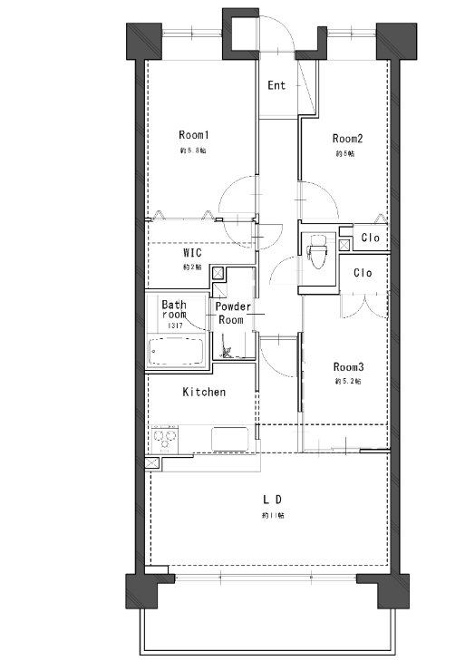
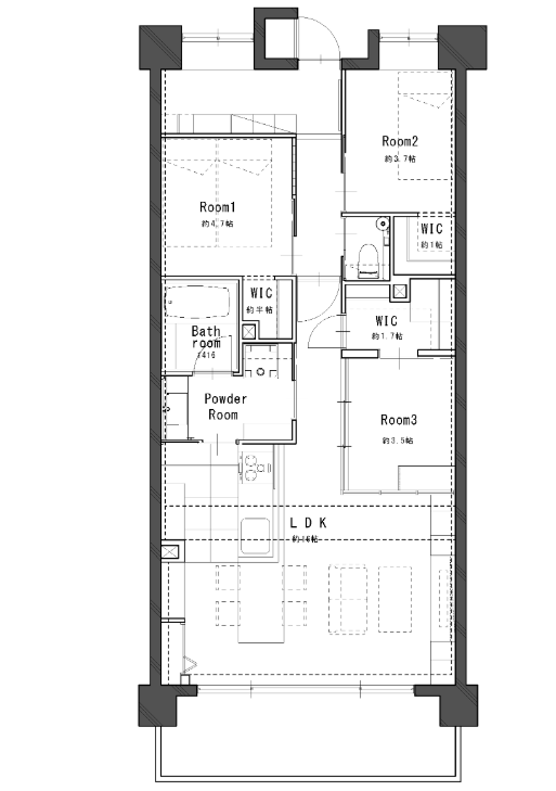
間取り

BEFORE

BEFORE AFTER

AFTER

撮影:今井 淳史(日本建築写真家協会会員)

※本記事の情報は、信頼できると判断した情報・データに基づいておりますが、正確性、完全性、最新性を保証するものではありません。法改正等により記事執筆時点とは異なる状況になっている場合があります。また本記事では、記事のテーマに関する一般的な内容を記載しており、より個別的な、不動産投資・ローン・税制等の制度が読者に適用されるかについては、読者において各記事の分野の専門家にお問い合わせください。(株)GA technologiesにおいては、何ら責任を負うものではありません。

この記事を書いた人

RENOSYマガジン編集部

「不動産やお金の疑問をわかりやすく解決するメディア」を掲げ、本当にためになる情報の提供を目指すRENOSYマガジン編集部。税理士やファイナンシャルプランナーの人たちと共に、中立・客観的な視点で「不動産とお金」を解説、読んでいる人が自分の意思で選択できるように日々活動している。

  1. TOP
  2. RENOSY マガジン
  3. 特集
  4. 美観と快適性と機能性。すべてを叶えた "西海岸モダンスタイル"ー RENOSY(リノシー)リノベ事例
LINE Instagram Youtube Facebook X