公開日: 2021.04.02

ふたりの思い出あふれる町で叶えた “光と風”でつつまれるヴィンテージリノベー RENOSY(リノシー)リノベ事例

ふたりの思い出あふれる町で叶えた “光と風”でつつまれるヴィンテージリノベー RENOSY(リノシー)リノベ事例

 RENOSYでは、中古マンションの家の中をいったん全部なくして、ゼロからお客様と一緒に、おうちづくりを行っています。フルリノベーションはもちろん一部のお部屋だけをリノベした例もあります。RENOSYでリノベーションした事例をご紹介します。

好きな町で、満足いくリノベを

ご夫婦の今までのお住まいは、風通しが悪く日当たりも悪い、いつもジメジメとした賃貸マンション。

住まいを購入する上での第1条件は、いつも光と風を感じることのできるお部屋。そして、幼なじみご夫婦の第2の希望条件は、共に思い出を育み、慣れ親しんだこの町に住むことでした。

お選びいただいた物件は、お二人が小さい頃から親しんだ町並みの一角にある築45年のヴィンテージマンション。日当たりと風通しの抜群な角部屋で、管理がしっかりと行き届いていることも選んだ理由です。

幼い時から見慣れていたこのマンションにまさか自分たちがリノベーションして住むとは全く想像していなかったとのこと。物心がつく前からそこに佇んでいたこのマンションで、これからのお二人一緒の時間を刻む理想的なお住まいを叶えました。

リビング・ダイニング

キッチン

廊下

収納

物件情報

間取り 2LDK
構造 RC
完工時築年数 47年
エリア 東京都品川区
世帯構成 ご夫婦2人
広さ 62.82m2
物件価格 3,050万円
リノベーション費用 950万円
月支払い 12万円(管理費修繕費込み)
以前の住まい 45m2の賃貸
以前の家賃 11万円

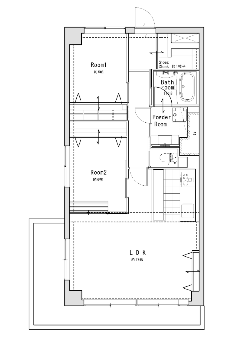
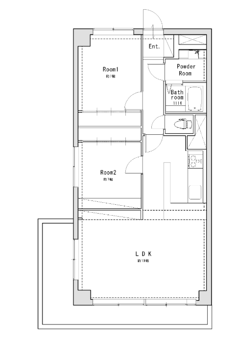
間取り

BEFORE

BEFORE AFTER

AFTER

撮影:今井 淳史(日本建築写真家協会会員)

※本記事の情報は、信頼できると判断した情報・データに基づいておりますが、正確性、完全性、最新性を保証するものではありません。法改正等により記事執筆時点とは異なる状況になっている場合があります。また本記事では、記事のテーマに関する一般的な内容を記載しており、より個別的な、不動産投資・ローン・税制等の制度が読者に適用されるかについては、読者において各記事の分野の専門家にお問い合わせください。(株)GA technologiesにおいては、何ら責任を負うものではありません。

この記事を書いた人

RENOSYマガジン編集部

「不動産やお金の疑問をわかりやすく解決するメディア」を掲げ、本当にためになる情報の提供を目指すRENOSYマガジン編集部。税理士やファイナンシャルプランナーの人たちと共に、中立・客観的な視点で「不動産とお金」を解説、読んでいる人が自分の意思で選択できるように日々活動している。

  1. TOP
  2. RENOSY マガジン
  3. 特集
  4. ふたりの思い出あふれる町で叶えた “光と風”でつつまれるヴィンテージリノベー RENOSY(リノシー)リノベ事例
LINE Instagram Youtube Facebook X