公開日: 2021.03.25

居心地のよさを追求した家ー RENOSY(リノシー)リノベ事例

居心地のよさを追求した家ー RENOSY(リノシー)リノベ事例

RENOSYでは、中古マンションの家の中をいったん全部なくして、ゼロからお客様と一緒に、おうちづくりを行っています。フルリノベーションはもちろん一部のお部屋だけをリノベした例もあります。RENOSYでリノベーションした事例をご紹介します。

好きに囲まれる住まいに

施主様とのお話を通じて「お客様の好きな世界観」を実現。
好きな雰囲気、色、素材、形、また、ソファに座ったときにみえるベランダの景色も考慮して間取りを決定し、とことん居心地のよい空間に身を置いていただけるようにしました。

白を基調にした明るい部屋で、心地よい時間を過ごせるお家です。

リビング・ダイニング

迷いに迷ったアクセントウォールの色も、最終的にターコイズ調のブルーに決定。
この角度から見ても、アクセントとして効いています。

キッチン

寝室

施主様が探した古材を部分につけました。

玄関

玄関にはテラコッタ風のタイルをあしらって、爽やかな風を感じられる雰囲気に。

サニタリー

物件情報

間取り 1LDK
構造 鉄筋コンクリート
完工時築年数 50年
エリア 東京都渋谷区
世帯構成 男性1人
広さ 50.9m2
物件価格 3,700万円
リノベーション費用 800万円
月支払い 13.6万円(管理費、修繕費込み)
以前の住まい 賃貸 26m2の1Kマンション
以前の家賃 11.8万円

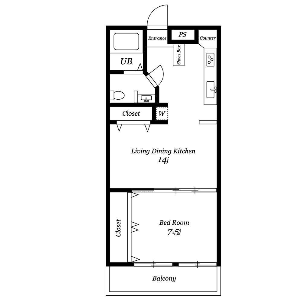
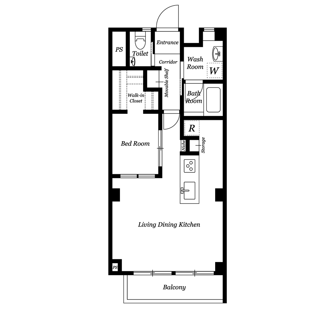
間取り

BEFORE

BEFORE AFTER

AFTER

設計デザイン:前田 清一
施工:宮城 太樹
撮影:今井 淳史(日本建築写真家協会会員)

※本記事の情報は、信頼できると判断した情報・データに基づいておりますが、正確性、完全性、最新性を保証するものではありません。法改正等により記事執筆時点とは異なる状況になっている場合があります。また本記事では、記事のテーマに関する一般的な内容を記載しており、より個別的な、不動産投資・ローン・税制等の制度が読者に適用されるかについては、読者において各記事の分野の専門家にお問い合わせください。(株)GA technologiesにおいては、何ら責任を負うものではありません。

この記事を書いた人

RENOSYマガジン編集部

「不動産やお金の疑問をわかりやすく解決するメディア」を掲げ、本当にためになる情報の提供を目指すRENOSYマガジン編集部。税理士やファイナンシャルプランナーの人たちと共に、中立・客観的な視点で「不動産とお金」を解説、読んでいる人が自分の意思で選択できるように日々活動している。

  1. TOP
  2. RENOSY マガジン
  3. 特集
  4. 居心地のよさを追求した家ー RENOSY(リノシー)リノベ事例
LINE Instagram Youtube Facebook X