公開日: 2020.11.25

​​​​​​子ども3人を迎え入れる家ー RENOSY(リノシー)リノベ事例

​​​​​​子ども3人を迎え入れる家ー RENOSY(リノシー)リノベ事例

RENOSYでは、中古マンションの家の中をいったん全部なくして、ゼロからお客様と一緒に、おうちづくりを行っています。フルリノベーションはもちろん一部のお部屋だけをリノベした例もあります。RENOSYでリノベーションした事例をご紹介します。

生活スタイルを見据えて

ご結婚を機にお家を探された施主様ご夫妻。将来ご家族が増えることを想定して、フレキシブルな家を作りたいというご希望でした。もっとも重視されたのが、たっぷりの収納スペースと清掃性。そこで生活スタイルにあった収納を提案しました。
 
設計士と打ち合わせを重ねて、リビングの構想を大きく変え、使い勝手と機能そして耐久性を重視したお家が完成。黒がお好きという奥様にあわせて、クールな印象でまとめました。

リビング・ダイニング

リビング・ダイニング
何度も設計士と打ち合わせを重ねて、計画の途中で構想が変わり、たどりついたこの形

リビングで室内干しするときのために床の材質を一部変えるなど、清潔さと機能とのバランスをとりました。

収納するモノをあらかじめお伺いした上でそれらがぴったりと収まるようにしました。
家電製品の充電がクローゼットの中で完結するなど、いつでも居室空間がすっきりした状態になるよう、配慮しました。

キッチン

洋室1

洋室2

サニタリー

玄関

玄関先から廊下に続く収納は、玄関と廊下の床の段差にできる隙間を埋めて、ホコリがたまらないようにしました。

物件情報

間取り 2LDK
構造 鉄筋コンクリート
完工時築年数 15年
エリア 東京都葛飾区
世帯構成 ご夫婦2人
広さ 70.95m2
物件価格 2,300万円
リノベーション費用 900万円
月支払い 11.1万円(管理費、修繕費込み)
以前の住まい ご実家 50m2の2LDKマンション
以前の家賃 0円(持ち家)

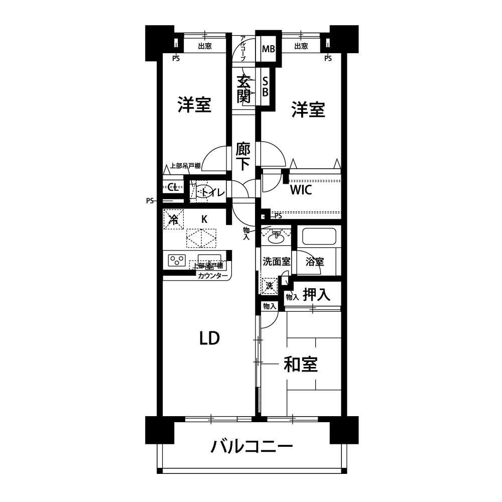
間取り

BEFORE

BEFORE AFTER

AFTER

設計デザイン:牟田 美紀
撮影:今井 淳史(日本建築写真家協会会員)

※本記事の情報は、信頼できると判断した情報・データに基づいておりますが、正確性、完全性、最新性を保証するものではありません。法改正等により記事執筆時点とは異なる状況になっている場合があります。また本記事では、記事のテーマに関する一般的な内容を記載しており、より個別的な、不動産投資・ローン・税制等の制度が読者に適用されるかについては、読者において各記事の分野の専門家にお問い合わせください。(株)GA technologiesにおいては、何ら責任を負うものではありません。

この記事を書いた人

RENOSYマガジン編集部

「不動産やお金の疑問をわかりやすく解決するメディア」を掲げ、本当にためになる情報の提供を目指すRENOSYマガジン編集部。税理士やファイナンシャルプランナーの人たちと共に、中立・客観的な視点で「不動産とお金」を解説、読んでいる人が自分の意思で選択できるように日々活動している。

  1. TOP
  2. RENOSY マガジン
  3. 特集
  4. ​​​​​​子ども3人を迎え入れる家ー RENOSY(リノシー)リノベ事例
LINE Instagram Youtube Facebook X