公開日: 2018.05.18

わたしのリノベーションストーリー:悩みどころだった「斜めのキッチン」を、造作家具で解決

わたしのリノベーションストーリー:悩みどころだった「斜めのキッチン」を、造作家具で解決

マンション購入とセットの「リノベーション」って、人生で何度も経験することではないから、わからないことでいっぱいですよね。RENOSYを通じて、自分の念願の住処を手に入れた先輩たちのお部屋を訪問し、こだわりのポイントを伺います。

今回訪ねたのは、じつはまだ工事中のお部屋。「造作家具」の取り付け工事が行われると聞いて見学に伺ったのですが、そこは真剣勝負の世界でした。

変わった形の部屋は、デッドスペースが生まれがち

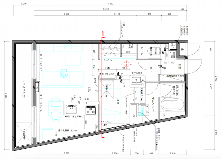
お部屋は43平米の1LDK。人気の中央線沿線で駅近、オートロックのついた共用部も綺麗に管理の行き届いた印象で、なかなかの好物件。

なのですが、設計者を悩ませたのは、ちょっと不思議な形の間取り。全体に台形で、特にメインのダイニングキッチンの部分にまっすぐのカウンターキッチンをつけると、なかなかのデッドスペースが生まれてしまいます。

そこで、設計者が考えたのが、キッチンに斜めの形の食器棚をつけちゃうプラン。(間取り図、左下の箇所)

これなら、冷蔵庫もいい具合におさまって、よさそうですが、こんな複雑な形の家具、どこにも売っていないだろうし、一体どうやって作るのかしら……? そこで、今回の取材と相成ったわけです。

工事中の室内に、おじゃまします。
廊下の左側には、寝室になるスペース。
右側には、トイレ。どちらもアクセント壁紙の色が可愛らしくて個人的にツボです。

まだ工事中の状態ではありますが、寝室にはオープンなクローゼットがつけられていたり、トイレには動線を邪魔しない三角形の造作棚があったり、デッドスペースを生まないための工夫が随所に見られるお部屋です。

そして、工事進行中のリビングです

今回、造作家具の工事を引き受けてくださったのは、埼玉に工房を設ける家具職人さん。ふだんはオーダーメイドなどの家具製作をしていらっしゃいますが、今回は特別に、このキッチンに合わせた「斜めの食器棚」を作っていただけることに。

少しできてきていました!斜めで、奥行きも狭いキッチンのスペース、慎重に作業していらっしゃいます。

その場に合わせて、ミリ単位で調整する作業

ホワイトオークの突板合板と無垢材で構成された今回の食器棚。伺ったときは、棚の最下部に突板を貼る作業の真っ最中でした。

完成してから納品する普通の家具なら、もちろんサイズはあらかじめ決まっているのですが、今回は、できあがった床や壁、キッチンカウンターなどに合わせて、現地で最終的な寸法を決める必要があります。

少しずつ、カンナで削って
はめこんでみて、確認する。この作業を繰り返して、隙間なく、ぴったりおさめます。
次に出てきたのは、右側にとりつける引き出しの部分。

こちらも小さな木片を使って、壁や床との隙間を調節しながら、ミリ単位で高さを合わせていきます。

一旦、天板を載せてみて、レーザーで水平になっているかどうかを確認。

こちらは引き出しの右側につく側板。のこぎりとのみで、何をしているかというと、
このように、壁の巾木がでている部分を削るんですね。隙間なくぴったり、が見ているだけで気持ち良い。

ずっと傍で見学させていただいたのですが、ミリ単位で少しずつ、少しずつ作業されていく、職人さんの根気強さに頭が下がる思いでした。こうして、現地での作業だけで丸一日をかけて「斜めの食器棚」は完成。

「ぴったり」の気持ち良さと、特別感

完成したものがこちらです!
細部のディテールまでこだわった、特別な食器棚になりました。

オークの床にあわせて作られた、オークの食器棚。取っ手や、上部の棚受けにはお部屋の他の部分にもところどころ使われている「黒」をあしらうため、アイアンの素材が。「このお部屋にあわせて作ってもらった」特別感を感じます。

扉を開いても、引き出しを開けても、「ぴた!」と気持ちよく使えて嬉しい。あの、ミリ単位の調整がきっと効いているんですね。
悩みどころだった「斜め」も、こうやってすっきりと、使いやすい動線に変わりました。う~ん気持ちいい。
会話の弾むキッチンになりそうだな~

長く賃貸のお部屋に住んでいると、部屋はできあがっていて、置きたい家具も別であって、それをどう合わせるか?というのがずっと悩みどころでしたが、リノベーションならこんなふうに、「部屋に合わせて家具を作る」ことができるんですね。

「ぴったりの家具の特別感と気持ち良さ」に、オーナーさんがとても羨ましくなってしまいました。

※本記事の情報は、信頼できると判断した情報・データに基づいておりますが、正確性、完全性、最新性を保証するものではありません。法改正等により記事執筆時点とは異なる状況になっている場合があります。また本記事では、記事のテーマに関する一般的な内容を記載しており、より個別的な、不動産投資・ローン・税制等の制度が読者に適用されるかについては、読者において各記事の分野の専門家にお問い合わせください。(株)GA technologiesにおいては、何ら責任を負うものではありません。

この記事を書いた人

田村美葉

エスカレーターマニアというちょっと変わった肩書きを持っていますが、インテリアやリノベーションが大好きです。たくさんの素敵なお部屋を取材させてもらうことがライフワークになりつつあります。 東京エスカレーター

  1. TOP
  2. RENOSY マガジン
  3. 特集
  4. わたしのリノベーションストーリー:悩みどころだった「斜めのキッチン」を、造作家具で解決
LINE Instagram Youtube Facebook X