公開日: 2018.07.09

わたしのリノベーションストーリー:気軽な距離感でおもてなしができる家にしたい。フィナンシャルプラン アドバイザーさんの部屋

わたしのリノベーションストーリー:気軽な距離感でおもてなしができる家にしたい。フィナンシャルプラン アドバイザーさんの部屋

マンション購入とセットの「リノベーション」って、人生で何度も経験することではないから、わからないことでいっぱいですよね。RENOSYを通じて自分の念願の住処を手に入れた先輩たちのお部屋を訪問し、こだわりのポイントを伺います。

今回おじゃましたのは、ご結婚を機にマンションをご購入、1LDKリノベーションしてお住まいの、ご夫婦のお部屋。自宅にお仕事のお客さんを呼ぶことを前提に考えたというリビングは、とても居心地の良い空間でした。

お引越ししたての新居にお邪魔しました

お伺いしたのは、工事中に造作家具の取り付け工事の様子を見せてもらっていたお部屋( その時の様子はこちら )。
早速、ご入居を開始されたとのことで、お引越し早々のタイミングでちょっとせっかちではありましたが、新居の様子を拝見させていただくことになりました。

このお部屋の主は、某大手外資系生命保険会社のフィナンシャルプラン アドバイザーとしてご活躍のさとみさん。笑顔がとても素敵です。

ご結婚をされるタイミングで、お子様を産むことも考え、家でお仕事をしたりお客様を呼べる体制を作っておきたかったというさとみさん。普通の賃貸では難しいため、マンション購入に踏み切りました。旦那さんは一生賃貸でもよい、と思っていたそうで、さとみさんがRENOSYの担当者さんと一緒にかなり説得をしたんだとか。

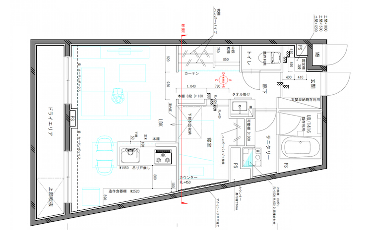
ちょっと変わった形の43平米のお部屋。2DKから1LDKに大きく間取りを変えました。
その甲斐あって、LDKはカウンターキッチンに、大きめのソファをおいてもゆとりのある、広々とした空間になりました。結婚式を終えたばかりのさとみさん。置かれていた大きな額は、披露宴のウェルカムボード。

「フィナンシャルプランナーとしてゆくゆくはセミナーを開催したり勉強会など開いたりしたいので、来たいと思っていただけるような、おしゃれな空間にしたくて、購入してリノベーションということになりました。自分でもセミナーにはよく足を運ぶのですが、殺風景な雰囲気の会場が好きではなくて。もっとアットホームで、リラックスしてもらえて、気軽に質問もできるような場所がいいな、と」

たしかに、お金にまつわるセミナーって、ちょっと堅苦しい雰囲気があってわたしも苦手でしたが、こちらでは、常ににこやかなさとみさんの雰囲気も手伝って、すごく和やかなムード。早速、気になるライフプランについて相談したい気持ちになってしまいました。

お客様を呼ぶことが前提だったので、洗面台は廊下に。また、来客中に旦那さんがリビングを通らなくていいよう、寝室もリビング手前に配置しました。
作りつけの本棚に収まっているのは、旦那さんの本。
本棚の向かい側にはカーテンで仕切られたクローゼット。コンパクトな空間を、とても上手に使われています。

お気に入りの場所になった、キッチン

元々はお仕事の関係で、RENOSYを紹介されたというさとみさん。
RENOSY担当者がよく物件を調べ尽くしていいものをいくつかピックアップしてくれた中で、立地もよく、ペットもOKで比較的きれいだったこちらをチョイス。

「やはり一番は立地ですね。人を呼ぶということが前提で、徒歩5分以内を必須条件にして探してもらいました」

一番のポイントは、対面式のキッチン。お子さんが生まれてからも、作業していても常に目が届くような配置にこだわりました。

「このキッチン、すごく使いやすいんです」と見せてくれたさとみさん。真ん中には食器洗い機がビルトイン。
「掃除もしやすいんですよ~」

斜めになった壁に特注で作りつけられた食器棚も、早速、素敵に活用されていました。
「ここに、ダイニングテーブルを置こうと思っているんです」

人と人をつなげる場所に

じつは、こちらのお部屋を購入する前にも、自分で投資用のマンションを購入されているさとみさん。ずっとそういうお仕事をされていたのかな、と思ってご経歴をお聞きしたらちょっと驚きました。

「元々は広告代理店でクリエイティブディレクターをしていたんですが、コスメ業界の担当から金融業界の担当に変わったことがきっかけになったんです」

まったく知識がなかった中から、突然証券会社の担当になり、金融とはどういうものなのかというところから少しずつ、ひとつひとつの商品特性などを勉強していきました。そこから知識を深める中で、資産形成の大切さに気づき、自分で資格も取得し今の業界への転職を叶えたのだそう。まったく土台がゼロの中から自分自身でしっかり知識を吸収して、ここまで来れてしまうさとみさんの情熱、すごいです。

そんなさとみさんだからこそ、ただ単に保険などの金融商品を売るだけでなく、しっかりリスクヘッジするための知識を伝えることにも力を入れていらっしゃいます。

「車の運転も教習所で習ってから始めるように、投資もルールを頭に入れてから始めるのがいいんじゃないかな、と」

キッチンカウンターの前のマガジンラックは、来てくれた人と人とを繋げるような空間にしたいと考えているそう。今はさとみさんの愛読書が並びます。

ご自身のライフプランもかなり先まで、しっかり考えてらっしゃるさとみさん。こちらのお部屋は1人目のお子さんが小さなうちまで住み、将来的には賃貸に出すことを考えています。マンションの購入も、一生一度の大きな買い物というわけではないんですね。

しっかり必要な知識を学び、堅実に、でも確実に自分が理想とする暮らしかた、働きかたを目指しているさとみさん。生き生きとした笑顔が本当に印象的でした。

※本記事の情報は、信頼できると判断した情報・データに基づいておりますが、正確性、完全性、最新性を保証するものではありません。法改正等により記事執筆時点とは異なる状況になっている場合があります。また本記事では、記事のテーマに関する一般的な内容を記載しており、より個別的な、不動産投資・ローン・税制等の制度が読者に適用されるかについては、読者において各記事の分野の専門家にお問い合わせください。(株)GA technologiesにおいては、何ら責任を負うものではありません。

この記事を書いた人

田村美葉

エスカレーターマニアというちょっと変わった肩書きを持っていますが、インテリアやリノベーションが大好きです。たくさんの素敵なお部屋を取材させてもらうことがライフワークになりつつあります。 東京エスカレーター

  1. TOP
  2. RENOSY マガジン
  3. 特集
  4. わたしのリノベーションストーリー:気軽な距離感でおもてなしができる家にしたい。フィナンシャルプラン アドバイザーさんの部屋
LINE Instagram Youtube Facebook X