ライフステージに合わせた自分らしい暮らし設計。 使い勝手と遊び心を両立させたポップな住空間。ー RENOSY(リノシー)リノベ事例
RENOSYでは、中古マンションの家の中をいったん全部なくして、ゼロからお客様と一緒に、おうちづくりを行っています。フルリノベーションはもちろん一部のお部屋だけをリノベした例もあります。RENOSYでリノベーションした事例をご紹介します。
CONTENTS目次
将来も見据えた、未来もたのしみリノベ
新婚の若夫婦お二人。将来ご家族が増えることも視野に入れています。平日は出張も多く働き盛りなお二人ではありますが、結婚を機に将来のさまざまな選択肢を見据え生活環境の変化に合わせて流動性をもたせられるような設計を検討。休日は共通の趣味を楽しみながらゆったりとお家で過ごすことが多いため、自分らしさや心地よい空間づくりも課題でした。(イメージ設定)
家づくりのコンセプトは住み替えが容易に出来ること。売却しやすく貸しに出しやすいよう配慮する必要もあり、飽きのこないシンプルな間取りに、万人受けするデザインを採用しました。間仕切りにすりガラスを使用することで、閉めても圧迫感はなく、ほんのり灯りと気配を感じる仕様に。
リビング・ダイニング
キッチン
寝室
物件情報
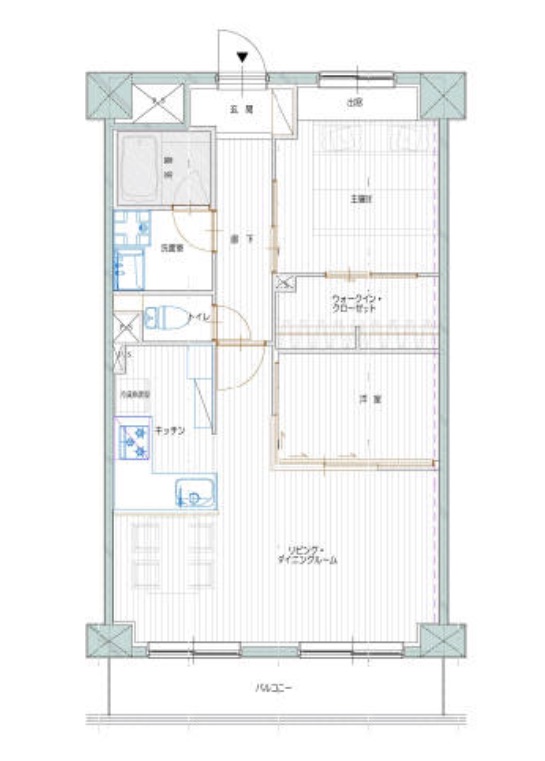
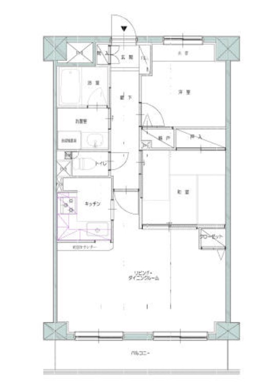
| 間取り | 2LDK→2LDK+WIC | 
|---|---|
| 構造 | RC | 
| 完工時築年数 | 22年 | 
| エリア | 東京都渋谷区 | 
| 世帯構成 | 家族(ご夫婦) | 
| 広さ | 60.18㎡ | 
| 物件価格 | 4,100万 | 
| リノベーション費用 | 900万 | 
| 月支払い | 15万5千円(管理費・修繕費込) | 
| 以前の住まい | 20㎡のワンルームマンション | 
| 以前の家賃 | 9万円 | 
間取り
BEFORE
AFTER
撮影:今井 淳史(日本建築写真家協会会員)
※本記事の情報は、信頼できると判断した情報・データに基づいておりますが、正確性、完全性、最新性を保証するものではありません。法改正等により記事執筆時点とは異なる状況になっている場合があります。また本記事では、記事のテーマに関する一般的な内容を記載しており、より個別的な、不動産投資・ローン・税制等の制度が読者に適用されるかについては、読者において各記事の分野の専門家にお問い合わせください。(株)GA technologiesにおいては、何ら責任を負うものではありません。
